La chiave del nostro successo?
Quella di casa vostra!
Toggle navigation
Home
Immobili
Vendite
Affitti
Immobili commerciali
Capannoni
Aste
Chi siamo
Servizi
Contatti
Invia la tua richiesta
Compatta pannello di ricerca immobili
Espandi pannello di ricerca immobili
Tipologia
Vendite
Affitti
Immobili commerciali
Capannoni
Aste
Categoria
Qualsiasi
1 locale
2 locali
3 locali
4 o più locali
Appartamento
Attico
Azienda agricola
Baita
Cantina
Capannone
Casa singola
Castello
Duplex
Garage
Hotel
Laboratorio
Loft
Magazzino
Maisonette
Mansarda
Negozio
Porzione di casa
Porzione di villa
Posto auto
Posto barca
Rustico / Casale
Stabile / Palazzo
Tenuta
Terreno
Terreno agricolo
Terreno edificabile
Ufficio
Villa
Villa bifamiliare
Villetta a schiera
Città
Tutte
Aviano (PN)
Azzano Decimo (PN)
Brugnera (PN)
Caorle (VE)
Chiarano (TV)
Chions (PN)
Codognè (TV)
Colle Umberto (TV)
Conegliano (TV)
Cordignano (TV)
Fontanafredda (PN)
Fontanelle (TV)
Gaiarine (TV)
Godega di Sant'Urbano (TV)
Gorgo al Monticano (TV)
Mareno di Piave (TV)
Oderzo (TV)
Pasiano di Pordenone (PN)
Pordenone (PN)
Prata di Pordenone (PN)
Sacile (PN)
San Quirino (PN)
San Vendemiano (TV)
Susegana (TV)
Zona
Tutte
Prezzo (da - a)
Mq (da - a)
Codice
Ordinamento
Inserimento
Codice
Categoria
Città
Zona
Prezzo
Metri quadri
Cerca
ELEGANTE STABILE IN PIETRA CON POSSIBILITA' DI PIù APPARTAMENTI
199.000 €
206 m
2
5 Camere
4 Bagni
Previous
Next
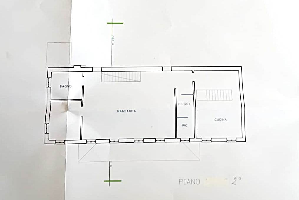
Foto
Planimetrie
Codice
LS_468
Città
Godega di Sant'Urbano
Categoria
Rustico/Casale
Locali
10
Mq Giardino
600
Classe energetica
F
241,03
Stato Immobile
Ristrutturato
Grado
Signorile
Panorama
Vista Giardino
Orientamento
Nord Ovest Sud Est
Lati Liberi
4
Giardino
Privato
Arredi
Possibilità
Tipo Cucina
Abitabile
Riscaldamento
Autonomo
Tipo Impianto
Altro
Fonte Energetica
Legna
Acqua Calda
Autonoma
Infissi
PVC Doppio Vetro
Serramenti
Nuovo
Persiana
Persiana Legno
Forse l’hai già visto…ma con che occhi lo hai guardato?
Ti sei mai fermato a immaginare cosa si nasconde dietro una facciata che racconta un secolo di storia?
Ti proponiamo un elegante stabile del 1926, un gioiello di architettura rurale con i caratteristici sassi a vista e il calore senza tempo dei soffitti interamente travati.
Ma non lasciarti ingannare dal fascino vintage: questa casa ha un’anima moderna e tecnologica.
La struttura è impeccabile, il tetto è stato completamente rifatto nel 2017, è già dotato di due impianti fotovoltaici pronti per alimentare una pompa di calore (che potrai installare sostituendo l'attuale riscaldamento a legna), i serramenti sono nuovi in PVC per il massimo isolamento termico e acustico.
Un giardino privato di circa 600 mq circonda l’immobile e due accessi carrai indipendenti offrono un valore aggiunto per valutare anche il frazionamento dell’intera proprietà
La vera forza di questo stabile è la sua incredibile versatilità.
La disposizione attuale è già predisposta per tre appartamenti, con la possibilità di realizzarne un quarto grazie al potenziale ampliamento volumetrico.
Qual è la tua visione?
Una dimora multi-familiare con lo spazio perfetto per accogliere 3 o 4 nuclei familiari, garantendo privacy a tutti sotto lo stesso tetto o un investimento vincente, convertendo l’immobile, che per fascino e posizione si presta magistralmente, in una struttura ricettiva di alto livello?
Non guardarlo come un semplice edificio. Guardalo come il futuro che stai costruendo.
Contattaci per una visita e vieni a scoprire il potenziale che solo occhi attenti sanno cogliere!
Se volete rimanere sempre aggiornati sulle nostre proposte consultate il nostro sito internet www.rossomattone.casa e seguiteci sulle nostra pagine Social Instagram rossomattoneagenzia e Facebook RossoMattoneAgenziaImmobiliare cliccando su “mi piace”!
Mappa
Via Roma 1, Godega di Sant'Urbano (TV)
Richiedi informazioni
Nominativo *
Telefono *
Email *
Dettagli richiesta *
Autorizzo il trattamento dei miei dati personali in base Regolamento UE n. 679/2016
Privacy Policy
Autorizzo al trattamento dei dati per finalità di marketing, attività promozionali, offerte commerciali ed indagini di mercato.
Invia
Condividi
Tweet
Condividi su Whatsapp
Condividi su Telegram
Mantieni impostazioni di default X
Uso dei cookies
Questo sito fa uso di cookies. I nostri cookies (propri) e quelli dei nostri Partners (cookies di terzi) servono per poterti offrire un'esperienza unica con noi. Per questo motivo, insieme ai nostri partners, raccogliamo e processiamo informazioni non sensibili (come l'identificatore del tuo dispositivo o le pagine che visiti).
In qualsiasi momento potrai eliminare, modificare o verificare le informazioni che condividi in
Cookie preference
o nella nostra
Cookie Policy
e
Privacy Policy
.
Necessari
Funzionali
Profilazione
Analitici
Accetta tutti
Rifiuta tutti
Accetta selezionati
Cookie preference