La chiave del nostro successo?
Quella di casa vostra!
Toggle navigation
Home
Immobili
Vendite
Affitti
Immobili commerciali
Capannoni
Aste
Chi siamo
Servizi
Contatti
Invia la tua richiesta
Compatta pannello di ricerca immobili
Espandi pannello di ricerca immobili
Tipologia
Vendite
Affitti
Immobili commerciali
Capannoni
Aste
Categoria
Qualsiasi
1 locale
2 locali
3 locali
4 o più locali
Appartamento
Attico
Azienda agricola
Baita
Cantina
Capannone
Casa singola
Castello
Duplex
Garage
Hotel
Laboratorio
Loft
Magazzino
Maisonette
Mansarda
Negozio
Porzione di casa
Porzione di villa
Posto auto
Posto barca
Rustico / Casale
Stabile / Palazzo
Tenuta
Terreno
Terreno agricolo
Terreno edificabile
Ufficio
Villa
Villa bifamiliare
Villetta a schiera
Città
Tutte
Aviano (PN)
Azzano Decimo (PN)
Brugnera (PN)
Caorle (VE)
Chiarano (TV)
Chions (PN)
Codognè (TV)
Colle Umberto (TV)
Conegliano (TV)
Cordignano (TV)
Fontanafredda (PN)
Gaiarine (TV)
Godega di Sant'Urbano (TV)
Gorgo al Monticano (TV)
Oderzo (TV)
Pasiano di Pordenone (PN)
Pordenone (PN)
Prata di Pordenone (PN)
Sacile (PN)
San Quirino (PN)
San Vendemiano (TV)
Susegana (TV)
Zona
Tutte
Prezzo (da - a)
Mq (da - a)
Codice
Ordinamento
Inserimento
Codice
Categoria
Città
Zona
Prezzo
Metri quadri
Cerca
APPARTAMENTO TERMOAUTONOMO DI RECENTE COSTRUZIONE
205.000 €
77 m
2
2 Camere
1 Bagni
Previous
Next
Foto
Planimetrie
Codice
RD_311
Città
Pordenone
Categoria
Appartamento
Spese condominiali
600 €
Locali
4
Box
1
Mq Box
16
mq Terrazzo
8
Piano
2
Classe energetica
C
Grado
Signorile
Posizione
Centro
Panorama
Vista Aperta
Lati Liberi
3
Arredi
Arredato
Tipo Soggiorno
Soggiorno
Tipo Cucina
A Vista
Riscaldamento
Autonomo
Tipo Riscaldam.
Caldaia a Condensazione
Tipo Impianto
Pavimento
Fonte Energetica
Metano
Acqua Calda
Centralizzata
Raffrescamento
Split
Infissi
Legno Doppio Vetro
Persiana
Tapparella PVC
Pavim. Giorno
Ceramica
Pavim. Notte
Parquet
Pavim. Cucina
Ceramica
Pavim. Bagno
Ceramica
Accesso Disabili
Nessuna Barriera
Accesso interno disabili
Pieno accesso
Accessori
Aria Condizionata, Ascensore, Doppi Vetri, Passaggio Automobilistico, Porta Blindata, Ripostiglio, Video Citofono
OPENHOUSE -> 31 GENNAIO 2026!
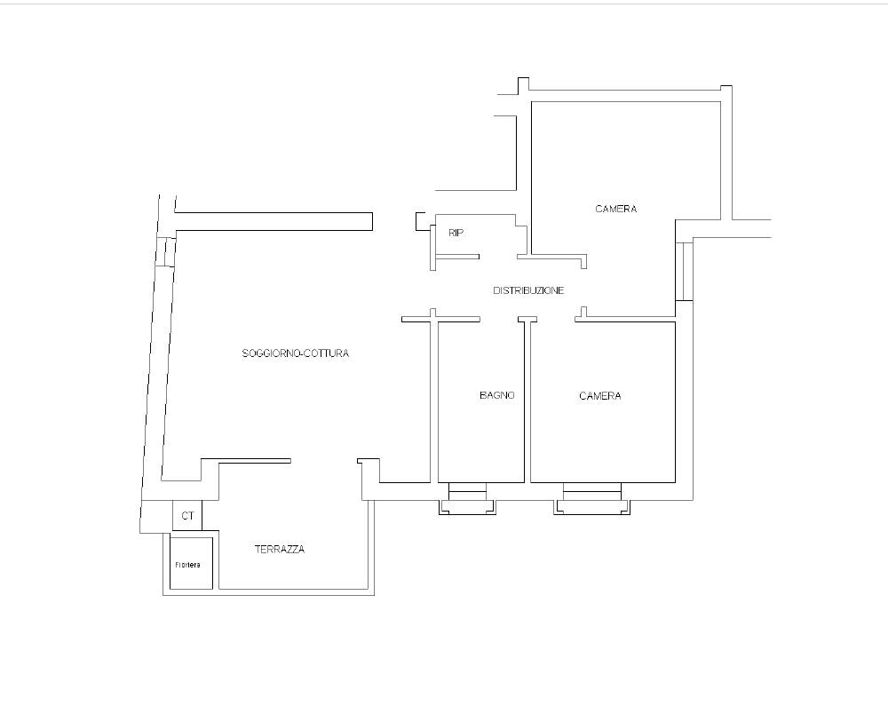
L'AGENZIA ROSSO MATTONE DI SACILE propone in esclusiva la vendita di un appartamento bicamere termoautonomo posto al secondo piano di uno stabile signorile concluso nel 2004. Lo stabile ha accesso tramite cancello automatizzato che garantisce un alto livello di sicurezza. L'appartamento, servito da ascensore, risulta essere estremamente luminoso grazie alla grande vetrata che fa da protagonista all'interno della zona giorno, quest'ultima composta da cucina a vista, angolo relax e bel terrazzo vivibile con locale caldaia. Il disbrigo centrale si dirama in un primo vano ripostiglio, il bagno dalla generosa metratura, la camera singola e la camera matrimoniale.
A completare la dimora, le sue pertinenze: garage chiuso e cantina nel seminterrato.
Alcune caratteristiche rendono questo immobile estremamente interessante:
- caldaia a condensazione sostituita recentemente,
- riscaldamento a pavimento
- posizione ottimale appena fuori dal centro storico della città e a due passi dal supermercato
- immobile venduto arredato.
Venite a vederlo! L'immobile sarà libero a partire da luglio 2026.
Per maggiori informazioni e per prenotare una visita all'appartamento per sabato 31 gennaio, CHIAMATECI IN AGENZIA!
Se volete rimanere sempre aggiornati sulle nostre proposte consultate il nostro sito internet e seguiteci sulla nostra pagina Facebook RossoMattoneAgenziaImmobiliare cliccando su “mi piace”!
Mappa
Viale Grigoletti 60, Pordenone (PN)
Richiedi informazioni
Nominativo *
Telefono *
Email *
Dettagli richiesta *
Autorizzo il trattamento dei miei dati personali in base Regolamento UE n. 679/2016
Privacy Policy
Autorizzo al trattamento dei dati per finalità di marketing, attività promozionali, offerte commerciali ed indagini di mercato.
Invia
Condividi
Tweet
Condividi su Whatsapp
Condividi su Telegram
Mantieni impostazioni di default X
Uso dei cookies
Questo sito fa uso di cookies. I nostri cookies (propri) e quelli dei nostri Partners (cookies di terzi) servono per poterti offrire un'esperienza unica con noi. Per questo motivo, insieme ai nostri partners, raccogliamo e processiamo informazioni non sensibili (come l'identificatore del tuo dispositivo o le pagine che visiti).
In qualsiasi momento potrai eliminare, modificare o verificare le informazioni che condividi in
Cookie preference
o nella nostra
Cookie Policy
e
Privacy Policy
.
Necessari
Funzionali
Profilazione
Analitici
Accetta tutti
Rifiuta tutti
Accetta selezionati
Cookie preference